10.000 € / mes
2 HAB. 1100.00m2
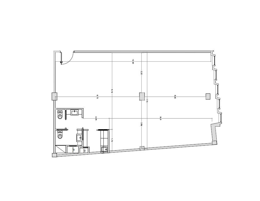
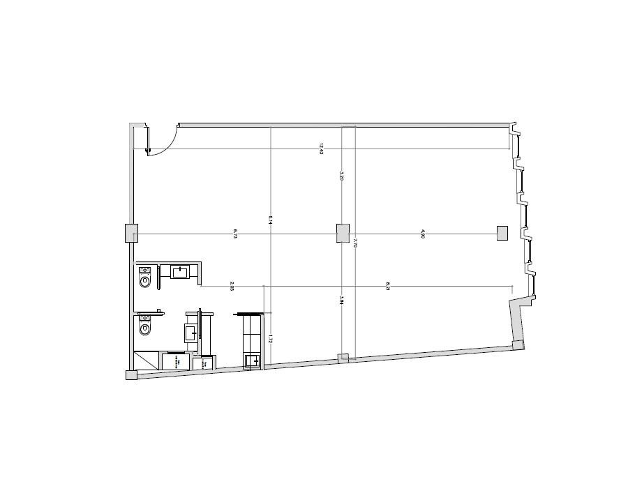
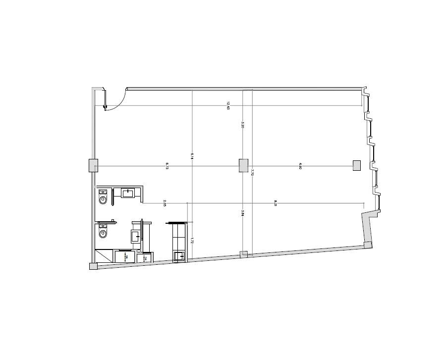
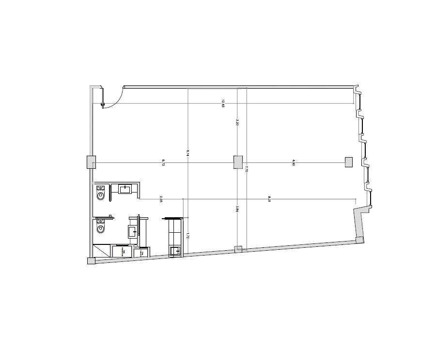
GRAN DESPACHO COMERCIAL de 1.100m2, entre las calles de Muntaner y Aribau y cercano al Hospital Clínic. ~Interiormente dividido en Planta Baja y Planta Entresuelo.~-La PLANTA BAJA tiene una superficie de 500m2, con amplia fachada exterior y se divide en amplia recepción, gran sala central de trabajo, 5 despachos independientes, aseos para señora y caballeros y zona de cocina con office. Tiene acceso directo por la calle y por el vestíbulo de la finca.~-La PLANTA ENTRESUELO tiene una superficie de 600m2, y comunicada con el local en planta baja mediante una amplia escalera interior. Se distribuye en 2 despachos de dirección con cristalera exterior que se comunican con una gran sala de reuniones con 1 aseo para señoras y caballeros, 1 despacho privado con 1 aseo, Gran sala central de trabajo, 7 despachos cerrados, y zona con aseos, office, 1 sala técnica y almacén. La planta tiene también dos puertas de acceso independiente directo por la escalera.~~ACABADOS: Muy buena conservación y acabados en general, con gran cantidad de armarios y archivos para almacenaje, divisiones de cristal, pavimento de parquet, bomba de aire frio/calor en todas las salas, despachos principales con una excelente presencia. Actualmente tiene instalado sistema de alarma.~~Muy buena ubicación, en l'Antiga Esquerra de l'Eixample, donde podemos encontrar una amplia oferta tanto en servicios como en comunicaciones en la zona. ~~PUEDE CONSULTARNOS CON LAS DISTINTAS POSIBILIDADES QUE PODEMOS OFRECERLES EN METROS Y ESPACIOS, EN FUNCIÓN DE SUS NECESIDADES. ~~Este arrendamiento está sujeto al IVA.~
